Your privacy is important to us. This website uses cookies to enhance user experience and to analyze performance and traffic on our website. By using this website, you acknowledge the real-time collection, storage, use, and disclosure of information on your device or provided by you (such as mouse movements and clicks). We may disclose such information about your use of our website with our social media, advertising and analytics partners. Visit our Privacy Policy and California Privacy Disclosure for more information on such sharing.

Log In

Our Brands

Helpful Tools

Search

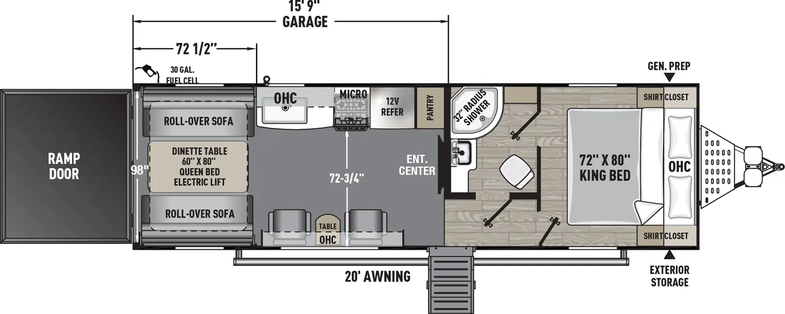
Explore 2026 Travel Trailer Toy Haulers 27KB Floorplan

The Work & Play 27KB delivers serious hauling capability with over 32 feet of trailer built for gear, quads, or side-by-sides. Strong ramp construction and reinforced frame let you load heavy gear, then convert your space to relax. It’s a mobile base for adrenaline seekers who don’t want to leave anything behind.

Hitch Weight
1,198 lb.
GVWR
11,000 lb.
UVW
7,488 lb.
CCC
3,512 lb.
Exterior Length
32' 11"
Exterior Height
12' 0"
Exterior Width
102"
Fresh Water
98 gal.
Gray Water
35 gal.
Black Water
35 gal.
Awning Size
20'

27KB Floorplan Travel Trailer Toy Haulers Features & Options

    • 102" Wide Body Construction (96" wide on LT’s)
    • 5" Crowned Aluminum Reinforced Full Walkable Roof
    • Aluminum Solid Entry Step
    • 5-sided Alumicage Construction
    • Interior and exterior vacuum bonded walls w/Azdel composite panels
    • 5/8" tongue and groove plywood decking
    • Heated and Enclosed Underbelly
    • Radius Entrance and Baggage Doors
    • Patio Ready Ramp Door w/Cables
    • Key Lock Ramp Door Latches
    • Velarium Velocity Power Awning Switch w/LED Light Strip
    • Rain Gutters w/Extended Drip Spouts
    • Power Tongue Jack
    • Dual Battery Rack
    • Black Tank Flush
    • 4-Point Manual Stabilizer Jacks
    • Rear Cargo Loading LED Light
    • MORryde Safe-T Rail on entry door
    • Satellite and cable prep
    • Outside Spray Port
    • Slam Latch Door Catches
    • Detachable Power Cord
    • Rear Camera Prep
    • RVIA
    • HD Rubberized Oil/Gas/Moisture Resistant Flooring Garage Area
    • Hidden Hinge Cabinets and Doors
    • Easy Glide Full Extension Ball Bearing Drawer Guides
    • 30,000 BTU Auto-Ignition Ducted Furnace w/Wall Mount Thermostat
    • Medicine Cabinet w/Shelf
    • Shower w/Surround and Glass Enclosed Doors
    • Hi-Rise Porcelain Foot Flush Toilet
    • Winterize Ready Kit
    • Skylight above Shower (N/A 21LT)
    • Utensil Drawer - Most Models Floor plan dependent
    • Stainless Steel Single Basin sink
    • Bed Spread
    • Euro Recliners (21LT, 27LT, 27KB, 29SS)
    • SMART TV
    • Indoor/Outdoor Bluetooth Speakers w/ Surround Sound
    • King Bed 72" x 80" w/Cover (Queen Bed 18LT, 21LT, 30GS)
    • Bedroom TV Hookups
    • USB Charging Ports - Multiple Locations
    • 12 Volt Power Vent in Bath w/Remote
    • Magic Chef 10 Cu. Ft. 12v Refrigerator
    • LED strip lightning w/ dimmer
    • 8" Mega Rail Powder Coated Chassis (10" on 29SS and 30GS)
    • One Piece Dicor Tufflex PVC Roof Membrane
    • Fiberglass Front Cap w/Rock Guard
    • Heavy Duty Dexter Axles
    • Spare Tire
    • 15" Aluminum Wheels w/E-Rated Radial Tires (18LT, 21LT, 27LT, 27KB)
    • GE 15,000 BTU Ducted A/C
    • Tinted Safety Glass Windows
    • Air Filled Tires
    • LED Lighting
    • 30" Radius Entrance Door
    • 2-30 Lb LP Tanks w/Cover
    • Velarium Velocity Power Awning Switch w/LED Light Strip
    • Winegard Air 360 and TV Antenna
    • Battery Disconnect
    • SafeRide RV Roadside Assistance
    • 1,500# Rated D-Rings
    • Magic Chef 10 Cu. Ft. 12v Refrigerator
    • Magic Chef Microwave
    • Magic Chef Cooktop w/Oven
    • Suburban Tankless Water Heater (42,000 BTU)
    • Zero Gravity Ramp Door
    • Aluminum Solid Entry Step
    • 50 AMP Service w/ Second A/C Prep
    • Pull-down Roller Night Shades
    • Generator Prep
    • 30 Gallon Fuel Station
    • Rear Pull-down Screen
    • Electric Stabilizers and Power Tongue Jack
    • 300W Solar Panel w/MPPT Control Charger
    • Electric Queen Bed Lift w/Wall Mounted Sofas
    • 5.5K Onan Generator
    • Second 15K BTU A/C
    • Ramp Door Party Patio Kit
    • CSA